





| Heizleistung | 13,5 kW / Wasserseitig 10,5 kW |
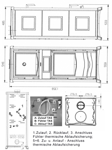
| Höhe / Breite / Tiefe | 135,9/55,9/48,5 cm |
| Rohrstutzen Ø | 130 mm |
| Bauart | 1 |
| Gewicht | 218 kg |
| Abgasmassenstrom | 14,7 g/s |
| mittlere Abgastemp. | 214 °C |
| Mindestförderdruck bei NWL | 0,17 - 0,2 mbar |
| Anschluss | oben |
| Frischluftstutzen | nein |
| erfüllt 2. Stufe BimschV | ja |
| Scheibenreinigungssystem | ja |
| Holzscheitlänge | 33 cm |
| Brennstoffe | Holz, Holzbriketts |
| Energieeffizienz | A+ |
